Details & Drawings
Village Drawings
The Village Layout diagram is of a cooperative Village Layout, containing four Neighborhoods made of three Clusters. Each cluster will house about 33 members freely, with each Neighborhood housing about 100 persons. Therefore, the top diagram will house 400 members.
The Trades Area will be offices and workshops for those that want to work and earn money. The property will also have Recreation areas and Food Raising areas.
Each Neighborhood will be have free Dining Hall for all evening meals for all Neighborhood members. Each Cluster will have a smaller Dining hall for breakfast and Lunches.
The parking area will have Golf Carts and delivery vehicles to transport into the Village.
The Trades Area of one Neighborhood might host an Assisted living and/or Nursing Home for our elderly.
The diagram is of a cooperative Village Layout, containing one Neighborhood made of three Clusters. Each Cluster contains free housing (about 15 homes housing about 33 members in total), local Dining & Meeting Hall, Workshop & Storage, Gazebo with playground, and a Guest Lodge.
How is the Village Organized?
The smallest unit is a Cluster consisting of about 15 homes and about 33 persons. The next unit is a Neighborhood consisting of 3 clusters, about 100 persons, and will contain a large dining hall for communal dinners.
Social dynamics change greatly above 100 persons so there is no unit greater than 100 persons. You will probably not know your other neighbors unless you work with them or share a hobby.
Village Physical Layout - Narrative
Below is one view of the village, assuming full occupancy and three years after startup.
Note that the first few years will be labor intensive due to construction. Thereafter, attention would move from construction to more food raising. This should leave a lot of idle time. During this phase “prettys” could be added, such as the large whiskey plant, 36 hole golf course, ski lodge, lounge where the Chip-N-Dales would dance, No Tell Motel, etc. But for now these are the basics.
- Parking
- Central parking lots could service several housing clusters (4) but walking might be required to them. There would be a paved turn lane into the village, then immediately a large central hard surface parking lot. Some dispersed parking for elderly and handicapped. Car sharing would cut down on parking spaces and some vehicle/ boat shelters could be provided.
- Roadways / Pathways
- Hard surface roads to warehouse districts, restaurants, elderly residential cluster. Thereafter non-paved roads for emergency vehicle access to regions. Walking paths connecting all regions with low-voltage lighting. Elderly and assisted living buildings would be near restaurants and have connecting sidewalks. Plentiful golf carts, wheelbarrows, carts and covered vehicles would be dispersed.
- Fencing
- Fencing could be placed around some homes to keep in kids and pets. Cats would be restricted from the outside. All play grounds, pools and ponds should be fenced, as well as dangerous areas to children.
- Power
- Public Power could be used for commercial buildings that have a high energy demand. Alternate power sources could be used for some residences.
- Drinking Water
- Municipal water, if available, could be used for fire hydrants and some commercial buildings with high water demands. Wells and cisterns could be used for residential clusters. Small water towers at each cluster might be needed to create the required water pressure and reserve. An integrated system (toggle on/off) could be used in event of one well failure or fire. Municipal water could tie into it in the event of low water reservoir.
- Sewage
- Two sewage systems could be used for each cluster: one for grey water and one for black water. Grey water could go into a filter system and then into a holding pond to be used for drip irrigation, toilets and perhaps showers. Black water could go into a shared septic tank or perhaps composting toilets could be used.
- Garbage
- A garbage center could recycle and compost, then transport the unusable refuse elsewhere. Unused refuse would be kept to a minimum.
- Communications
- All buildings could be linked for television, phone, Wi-Fi and computer systems. A television / cable service could be provided by the village.
- Food Raising
- Location / Footprint
- Approximately fifteen Clusters of 15 families each would exist. Each cluster would be tightly packed for the smallest footprint. Each cluster would have its own playground, gazebo, workshop/garage, laundry facility, freezers, home office and meeting & recreation room. One cluster might be near the fields / livestock for that farm feel; one might be way out for the hermits. One cluster might be childless.
- Single Units
- Small footprint, single bath, energy efficient lighting, facing the proper direction for energy efficiency, solar panels, hot water timers, sky lights, surrounded by edible vegetation nourished by drip irrigation. Will have ability to shut off all air conditioning except the bedrooms at night. Kitchens would have fire sprinkler systems. Anyone desiring exceptions would have to pay a premium for it.
- Apartments
- Apartments could be used for elderly needing light assisted living and for nongrowing families. These homes would have additional built-ins geared for the elderly.
- Guest Facilities
- Small cottages or apartments without major cooking facilities.
- RV Park, Campsite
- One cluster can be a campsite / RV park.
- Dining Hall
- Approximately four dining halls feeding 90 persons each would be required. They would provide daily four different menus that would be published to offer variety. Before and after meals the buildings could be used as meeting areas, lounges, coffee shops, etc. A pizza parlor or café could be added later.
- Lounges
- Lounges would be provided for different age groups.
- Offices & Meeting Facilities
- Warehouses
- One warehouse would act as general store. One warehouse would service restaurants. One warehouse would service trades.
- Workshops
- Carpenters, plumbers, communications, welders, health services (nurses, gym, massage, barber), etc.
- Learning Centers
- Classrooms, libraries.
- Hobby Shops
- Barns
- To house backhoe, tractors, farm equipment.
- Retreat
- A retreat lodge with accompanying guest houses would be available for seminars, a small get together, or a romantic vacation from the kids.
- Chapel
- Recreation Fields
- Playgrounds
- Picnic Gazebos
- Hiking Trails.
Cluster Buildings & Drawings
The Evolving House was Designed under the following design requirements:
Small Expandable Footprint:
A basic single room Evolving House of approximately 450 square feet could be provided for a healthy single person.
Upon marriage two bedrooms could be simply added, as they were planned for.
With the arrival of children three more rooms could simply be added. The key to simplicity is to have the walls raised on the Evolving house so that a “shed roof” can be installed which would slip under the existing roof line.
Community Built:
Members of the community will do the majority of the construction.
Will each resident own their own home?
No. Each resident will have a Life Estate Interest in living in the village. But the land and buildings will be owned collectively by a Community Land Trust which will eventually be owned exclusively by all of the residents.
Reasoning: The Land Trust will prevent parts of the village from being sold off or inherited causing land value escalation for all, which will eventually doom the village. It will preserve the land to be used forever as a co-operative village.
Will I stay in one house forever?
Probably not. As your family grows you might be moved to a larger house. As it shrinks you might be asked to move to a smaller house to free up the bigger one. You might ask for a cottage near your daughter so she can provide assisted living to you. You might get tired of your neighbors and decide to move to be near other musicians like yourself. But all of these moves would be free.
What size house will I get?
That depends on your health and your family size. A healthy young single person might get a one room 500 square foot cabin. A married couple, childless or with one child or an older single person might have two bedrooms added on to the cabin expanding it to 700 sq feet or move into an existing home that size. A larger family might have three more rooms added on expanding it to 1,200 sq feet.
Reasoning: The community will be responsible for providing all repairs and utilities. The community as a whole will decide what is in the best interest of all concerned. The goal is to keep housing costs down and focus on living.
Why are the houses so small?
Compared to today’s houses the square footage sounds extremely small. But consider this. Take a medium sized home and take away the unused bedrooms, extra baths, wash room, storage room, garage, home office and hobby room, then shrink the kitchen as it will be little used,. What you have left is the same core house that we will provide. All the space deducted will be provided to you but under other roofs in the form of community buildings. Oh yeah – the closets can be smaller now because you won’t need so many changes of clothes: work uniforms, business attire, tons of changes to impress people etc.
Reasoning: To keep housing costs down, prevent waste, reduce utility bills, and above all, to promote community interaction.
Where will relatives stay when they visit?
Each cluster of 15 homes will have a guest lodge that can house up to three families at a time (maximum of 10 persons). Travel trailers can also be moved in if needed.
Who is responsible for home repairs?
The village will provide all repairs.
Why can’t my kids inherit my house?
The house goes back into the pool and is made available to another resident. If your child chooses to stay in the village, he will already have his own home.
Otherwise, if your children were not a part of the village, and not acclimated to village life, and they inherited, they might move into the house, but not fit into the village, causing problems for all. If you had more than one child, it might be necessary to sell the house to divide up the value of this asset. This would drive up land values, and again, bring in people who did not fit in the village. When enough houses were sold, the village would cease to function.
Our original purpose is to create affordable housing. The purpose is not to invest in a house and cash out later. If the house is never sold it remains affordable housing forever. This way your kids that remain in the village are assured an affordable home.
Evolving House Description - Design Requirements
The Evolving House was Designed under the following design requirements:
Small Expandable Footprint: A basic single room Evolving house of approximately 450 square feet could be provided for a healthy single person. Upon marriage two bedrooms could be simply added, as they were planned for. With the arrival of children three more rooms could simply be added. The key to simplicity is to have the walls raised on the Evolving house so that a “shed roof” can be installed which would slip under the existing roof line.
Location: To be situated in Florida which has a mild winter with no snow; heat problem nine months of the year; extreme humidity year round, all of which makes it unbearable to live without air conditioning.
Rapid Construction: The village will probably need to be completed within two years which will require that 10 homes be completed per month in order to provide the approximate 250 homes needed. This means that materials must be readily available, construction techniques that are standard, simple and non-strenuous so that the entire population can provide the labor.
Acceptable by Permitting Authorities: The materials and construction methods should be readily approved by authorities so that costly engineering battles, time delays and building destruction and reconstruction are avoided.
Low Energy Demand: The house must have an energy demand as low as possible to eventually be self sustaining while still providing enough comfort to entice residents.
Built In Bedding: With the utilization of Murphy beds, roll-out beds, built-in beds, lean-to room housing a full size bed, or trundle beds, a bedroom can be alleviated for a healthy single person, or made smaller for families, thus cutting down on construction costs and energy requirements.
Evolving House Description - Construction Elements
Some construction elements are as follows:
Insulation: Roof and walls would have R Value of 30.
Roof Overhangs: Roof overhangs or awnings would extend a minimum of three feet around the home to provide maximum shade.
Duct Work: The basic Evolving house would have a window heat / air unit for maximum efficiency. Homes with added rooms might have an outside Air/Heat unit with oversized ductwork installed inside the house rather than the attic, thus yielding maximum efficiency.
Low Cubic Feet: All ceilings will be eight feet maximum.
Roofing: All roofing should be white metal which will reduce the sun’s heat affect and lower air conditioning bills by 25%. Attics will have foil radiant barriers. Styrofoam Insulated Panels (SIPs) could be used which would negate a truss system.
Sky Lights: Skylights may be installed over the bathroom, kitchen and main rooms.
Double Paned Glass.
Florescent Lighting: Uses 25% of power required for incandescent lighting and gives off minimal heat.
Floors: Footings could be concrete and floors could be cob.
Positioning: All homes will face the north with the least amount of glass as possible exposed to the south and west.
Fireproofing: Oversized electrical wires incased in PVC conduit; kitchen sprinkler system, sheetrock walls.
Plumbing: All plumbing would be above the floor slab for future maintenance.
Construction Elements:
Wall & Roof Details
These are samples of some small intentional community home layouts to be considered.
This full bed unit would appear to be built into an exterior wall. Actually the exterior wall is extended out seven feet and slopes down at a 45 degree angle to end at a height of three feet.
This cavity then holds the bed on wheels and a rail so that it can be pulled out at night. The cavity above the bed would hold pull-out drawers and would have a storage cabinet above the drawers.
The entire unit would be concealed behind sliding doors during the day. This unit drastically reduces cubic feet traditionally devoted to a full bed and accompanying furniture.
This bed unit would take up 7 feet by 3 feet of floor space. The system could either be free standing or built into the wall. It would be similar to a captain’s bed with drawers underneath and storage and shelves over it.
Note that it has four feet of sitting space between the bed and upper cabinet. It could even have a pull around curtain for those that sleep in the daytime or those not able to make the bed each day.
This unit is similar to a sideways Murphy bed. It would stick out about eighteen inches from the wall, but over a couch so that no floor-space is lost. At bedtime the unit would simply drop down and the built-in ladder would be extended. The couch would still be available for sleeping on.
This unit is similar to
Each cluster will have a Meeting Hall which might have the following features:
- Large open area with tables that fold up into the wall.
This would be a great place for the kids on rainy days. - Kitchen capable of feeding 30 people.
This could be used to prepare breakfasts, especially on school days. - Office space to be used by cluster residents.
- Conference table.
Each cluster will have a Garage & Workshop which might have the following features:
- A double–car garage space to serve as a tool room.
It could have the following:- A Typical garage door
- Be able to service an automobile
- Work benches, all tools needed by the cluster, perhaps wood working equipment.
- White metal roof so that it would not become an oven.
- Bathroom
- Telephone
- Large air conditioned workshop with tables and benches.
It could be used for sewing, electronics, arts and crafts or perhaps a training area. - A typical double-car garage space used for storage.
This would not be for long-term storage but rather for those items you anticipate using during the year, such as: luggage, sporting or hobby equipment, winter clothes, etc
Construction Phase:
Interior walls would be left out and both ends would be framed for double garage doors.
This would yield a 75 ft. x 25 ft. fabrication shop and warehouse with box fans at either end.
House wall sections, trusses and cabinets could be assembled here.
Each cluster will have a laundry as outlined below:
- Two commercial grade energy and water efficient washers.
- Soap & chemicals that will not render the waste water unusable.
- Two commercial grade dryers. Houses would have access to clothes lines.
- Exercise room housing exercise equipment.
- Closet containing vacuum, carpet cleaner, etc.
- Shed containing toys and outdoor equipment, accessible from the outside.
- Optional freezer bank could be added to laundry room if it were widened.
Each household might have access to one shelf. Three households would share a key.
Pre-Construction
- Have basic prints reviewed by an architect. Incorporate suggestions into other designs. Finalize prints
- Secure General Contractor, Master Electrician and Master Plumber
If necessary, train persons in the above fields to obtain licenses to work under. - Purchase hand held navigational equipment and perform civil engineering surveys ourselves to produce topographical maps for internal use only.
- Lay out construction sites and roads on maps. Layout on-site.
- Begin land clearing.
- Install Basic Infrastructure.
- Order electric power mains
- Install water wells
- Install central septic tanks
- Install construction shack with phone service
- Construct Roads
- Construct or secure warehouse for bulk purchases.
Construction
- Construct cluster garage, campground, gazebo, bathrooms (in place of washroom), meeting room, temporary construction trailers.
- Pour slabs. Install power poles where necessary
- Frame walls and joists, pre-wire panels.
This can be done inside garage during extreme weather. - Assemble walls; install trusses and/or roof system,
- Complete wiring, plumbing
- Complete exterior, interior. Finish floors
- Wire for phones/cable/computer
- After wall sections for cluster are finished, convert garage to cabinet maker’s shop and begin cabinets and built-ins.
- After first few buildings are completed, make “jigs” where possible for standardization and write training and procedure manuals for incoming residents helping in construction.
- Move campsite, construction trailers, construction office to next cluster.
- Complete washroom.
- Upon completion of third cluster, construct dining hall
Gazebo in each cluster might have the following features:
- 20 feet by 20 feet
- Screened in.
- Cob or concrete floor
- Roof of white metal so that the temperature underneath is the same as outside air.
- Have 3 foot awnings on all sides for additional shade.
These awnings could be lowered during winter.
They might have clear panels built-in for winter viewing. - Have two hinged walls, each two feet high that can be raised during the winter.
- Pot belly stove.
- Built-in center table and benches
- Electricity
The Guest Lodge would serve as a mini Motel and can house 3 families and sleep 10 people. The total floor space is only 750 square feet with the following features:
Two Main bedrooms each would be 12’ x 12’ with built-in beds, closet and alcove housing desk / table and storage locker. Each main bedroom sleeps four people.
The exterior wall of the two main bedrooms would have a 5’ tall window on each side of a single French door which steps out into a private covered Japanese garden. This not only gives a private entrance but also brings the outside in making the quarters appear larger.
Each main room would have a desk (with lamp over it) that pulls out into a table position seating 5 people. It would have two legs on one side and rest on a track on the wall side. It can be raised only one inch when pulling it out thus preventing spillage of top contents. A trunk would be built into the alcove under the desk for storage of bedding, etc. The alcove would also house folding chairs for the table.
Pull-up canvas curtains could be used for privacy while still bringing in light.
Skylights could also be used in main rooms, kitchen and baths.
T.V. installed on upper wall over bed and viewable with headsets.
Pull-down bed over couch with built-in ladder which allows couch to be slept upon.
Two bathrooms, one wheel chair accessible.
Small shared kitchenette.
Open T.V room, equipped with headsets, that can also sleep 2 people. This area could have a three foot high wall separating it from the kitchen while leaving the space open. A drop down curtain would then turn it into a bedroom.
The village would have about 5 dining halls configured as follows:
- One dining hall for every 3 Clusters.
- Serving 90 persons, a crowd small enough to remain on a personal basis.
- Each dining hall would prepare its own menu and meals, staffed by the Clusters it serves.
- Seating 50 persons for meals or 64 persons auditorium style. Early seating might be by online reservation only.
- Would probably serve daily dinner only.
- House a lounge / coffee house at one end. Diners wishing to linger could move there freeing up their table.
- Could be used during the day for meetings, child care, etc.
- Walk-in freezer might have a movable wall so that during the seasons empty space would not be cooled.
- The kitchen would have separate air conditioning system and be able to run off electricity and gas. It would have generators if needed.
- Stove and sink on covered porch for steaming, grilling or baking outside.
- Menus would be posted online. Residents could dine at other Dining Halls if they so desire.
- Some tables would fold into the wall making it easy for one person to clear the floor.
- Booths would be available for a more intimate setting. They could be reserved online.
- Have a mud room for pedestrians’ umbrellas and rain gear.





Trades Area / Multi Use Bldgs.
Auto Repair Shop
Trades: Auto mechanics, small engine mechanics, electric cart mechanics
- 12 x 12’ office required.
- 3 bays in 1,400 sq ft. building.
- $20,000 to equip with tools.
- $130 monthly power bill.
- $200 per month for diagnostic software service.
Barber / Beauty Shop
Description:
- 700 square feet: Allows for expansion.
- Four stations: 3 required but 4th would help with job sharing.
- Laundry would be done in cluster laundry.
- $10,000 to equip.
- Monthly supply budget of $300.
- Services would be free to residents except for supply cost.
- Would have to be staffed 40 hours per week in order to service 500 persons.
This would require minimum of 6 trained persons working 20 hours per week.
Business Office
Description:
Trades:
- Accounting (4)
- Auditors (2)
- Budget Analysts (2)
- Health Benefits Accounting (3)
- Legal (2)
- Small Business Advisor (1)
Small Business Advisor – Job Requirements
These persons would be knowledgeable in areas of business management, forecasting, taxes, bidding process, etc.
Responsible for assisting residents in forming small cooperative businesses and supporting them.
Central Operations
Trades:
- Visitor Manager
- Reservations
- Guest Lodges & Campground Managers
- Transportation Coordinator (internal & external)
- Phone Receptionist
- Central Dispatch (directs plumber to leak)
- Shipping & Receiving (small items)
- Post Office
- Security
- Community Organizer (who is going fishing today?)
Covered Parking
- Automobile unloading zone.
- Transportation will assist unloading and arrange for transportation to home.
- School bus stop
- Visitor Entrance
Child Care
Building Requirements for 50 kids (ranging from infant to 4 years old)
- 3,500 square feet, Air conditioned building required
- 4 classrooms
- Infant room with sink
- toddler room
- little kids area
- Recreation area
- 10’ X 10’ office
- Kitchen furnished
- Lunch room
- Storage Room
- Bathrooms
- Foyer area for check-in for emergency lighting
- Furnishings
- Kitchen: stove, refrigerator, sink, freezer, table and counter
- Classrooms: changing tables, furniture, television, computer, toys
- Playground area
- Fenced
- Playground equipment
- 35K for furnishings, kitchen equipment and playground equipment
- $500/month Electricity
- $100/month water
- Construction: $ —–K
Communications
The communications hardware systems must do the following:
- Link 250 houses, 40 commercial buildings.
- Provide Intra village phone service with outside lines available.
- Network computers at each location.
- Allow each computer access to the internet.
- Monitor well systems and equipment (SCADA / PLC’s)
- In-House TV Station with capability to:
- Provide cable service to all homes at greatly reduced rates.
- Broadcast live conference meetings from 4 intra village locations.
- Hand held walkie-talkies with a range of 2 miles and costing about $35 each could be used within the village. These sets have about 26 channels, so your last name would determine the channel you are on.
General Repair
Trades: Electricians, appliance Repair, HVAC, Electronics, computer techs, telephone/cable installers, plumbers.
- 1,000 square feet required with desks and workbenches
- Air conditioned
- Bathroom
- Awning required for outside work
- $3K to equip with shelving, workbenches and tools.
- $150 /month Electricity
- Construction: $—-K
Farm
Farm Info:
Metal Fabrication Shop
Metal Shop info:
Wood Fabrication Shop
Wood Shop info:
Focus Support
Description:
Trades: Secretaries
Workspace Required:
Two meeting rooms for 12 member Focus Groups to meet in (along with support staff), cubicles, file storage.
This is where Main groups can meet, keep their history (files) and have the continuity such a revolving group would need by utilizing permanent secretaries.
Gym
Gym info:
Health
Description:
Trades:
- Accounting (4)
- Auditors (2)
- Budget Analysts (2)
- Health Benefits Accounting (3)
- Legal (2)
- Small Business Advisor (1)
Small Business Advisor – Job Requirements
These persons would be knowledgeable in areas of business management, forecasting, taxes, bidding process, etc.
Responsible for assisting residents in forming small cooperative businesses and supporting them.
Library
The Library & Learning Center might be as follows:
- House books belonging to residents that would be available for checkout.
- House books belonging to residents in a closed stack available to other residents only upon approval of owner.
- House VCRs, CDs and other media available for checkout.
- House reference materials such as encyclopedias, atlases, almanacs, statutes, etc.
- House job training manuals.
- House certain magazine and newspaper subscriptions.
- Run a daily shuttle service to county library for items ordered on-line.
- Residents would have to be members of that library as well, enabling them to check out books there and use their computer data bases and research materials on-line from their homes.
- Provide story-time programs for children.
- Provide book discussion groups.
- Provide computers for research as well as research assistants.
- Library might be incorporated separately in order to get grants, software and assistance from other libraries.
- House a large classroom for training. As the library grows, this space could be used for expansion after a new classroom is built elsewhere.
- Media Center – house computers, internet access, faxes, VCR’s, DVD’s, printers and copiers that are used to facilitate information gathering and learning.
Maintenance
Maintenance info:
Pet Center
Description:
Trades: Pet Groomer / Washer, Animal Control / Vet
- Office: 20’ x 10’, air conditioned
- Bathroom
- Outside kennel area
Lodge
Lodge Physical Description:
Guest Rooms:
- Six large, plush rooms.
- 3 rooms step out onto patio with covered heated pool.
- All handicap assessable.
- Each contains two queen size beds.
Restaurant:
- Seats 24: 6 tables seating 4 persons each.
- Serves 3 meals per day.
- Excellent chefs and wait staff.
- Atmosphere might be similar to Steak & Ale.
Lobby / Lounge
- Might contain wet-bar
- Piano
- Lounge tables & couches
- Dance floor
Seminar Room: Has accordion walls. When folded back, dining, foyer and seminar areas become 2,000 sq feet ballroom.
Swimming Pool: Covered and heated.
Jacuzzi’s: Two
Sauna
Massage Tables: Four
No-Tell Motel
Four small stand-alone bungalows.
Located near each corner of the Lodge, but yet isolated.
Each would contain a stocked refrigerator, microwave and coffee pot.
Must be reserved through the Visitor Center. Free to residents.
Residents might have access to Lodge lounge, pool, Jacuzzi and sauna only. This access would be available only if vacationers were in the Lodge. During seminars these areas would be off limits.
No restaurant privileges would be allowed unless invited by a vacationer.
Lodge Use
Vacations:
Each home would have a free three day vacation per year, reserving one room. This could easily be done three days each week, leaving the Lodge available the rest of each week for outside seminars (fee paying) or internal seminars.
Resident vacationers could invite day guests and dinner guests until the restaurant is filled.
Live entertainment might be provided two nights each week. Perhaps a piano bar one night and different act the next evening.
One night might be a special occasion dinner, perhaps a cookout by the barn; a luau around the pool or a Japanese meal on the floor of the made over seminar room.
Vacations might be limited to adults only.
Seminars:
Most could be for-profit, with room and board being provided.
The No-Tell rooms could be reserved those nights making a total of 10 rooms available.
Lodge Drawing
Description:
- Recruitment (Job Description)
- Human Resources (Job Description)
- Social Worker
- Counseling
- Education Advisor (Job Description)
- Legal
- Entitlement Manager (Job Description)
- Risk Management
- Safety
Job Descriptions
Education Advisor:
These persons would be knowledgeable in areas of education grants and loans, college and non-college educational programs, vocational programs, non-traditional learning programs and in-house training programs.
Responsible for assisting residents in educational advancement or career training; help residents enroll in programs; establish housing if off-site; secure financing available.These persons would be knowledgeable of benefits under Social Security, Medicare, Medicaid, Federal programs, Social Services and other social programs.
Entitlement Advisor:
These persons would be knowledgeable of benefits under Social Security, Medicare, Medicaid, Federal programs, Social Services and other social programs.
Responsible for advising residents of benefits they qualify for and giving assistance in making application for them.
Human Resources:
These persons would be knowledgeable of each resident’s skills, talents, goals and needs.Responsible for assisting each resident in meeting their goals and needs and at the same time matching their talents with the needs of the community.
Recruitment:
Responsible for taking applications for residency and assisting through the admission process; providing seminars and personal coaching to assist applicants through probation period for adjustment to village life.
Sanitation
Description:
- 1,500 square feet Shed required to house trucks
- 1 office/break-room (10’x10’) with Window air conditioner
- Bathroom with shower
- $1,500 to equip with containers and tools.
- 3- recycling containers
- $50 /month Electricity
- $10/month Water
- Construction: $—-K
Warehouse
Description:
Trades: Supply, Purchasing, Shoppers, Inventory, General Store clerk.
- 3,000 square feet Metal building
- Office/Break-Room (12’x12’) with Window air conditioner
- Bathroom
- $1,500 to equip with shelving,
- $150 /month Electricity for lighting and a/c
- $10/month Water
- Construction: $—-K
- Located so that loading bay opens up to parking lot
Note: Activities are listed as they might be housed together.
Central Operations
- Visitor Manager
- Guest Lodges, Campground & Retreat Management
- Transportation Coordinator
- Phone Receptionist
- Central Dispatch
- Post Office
- Shipping
- Security
- Community Organizer
Business Office
- Accountant
- Auditor
- Bookkeeper
- Budget Analyst
- Health Benefits Accountant
- Legal
- Small Business Advisor
Gym / Exercise Room
- Accountant
- Auditor
- Bookkeeper
- Budget Analyst
- Health Benefits Accountant
- Legal
- Small Business Advisor
Food Raising
Chapel
Health Complex
- First Responders
- Nurses & Aids
- lternative Medicine
- Dieticians
- Assisted Living Coordination
- Midwife
- Labor Doula
- Lactation Consultant
- Fertility / Maternity Counselor
Gym / Exercise Room
- Physical Fitness Trainers
- Physical Therapists
- Sports Coaches
- Massage
Social Workers
- Recruitment
- Human Resources
- Social; Worker
- Counseling
- Legal
- Entitlement Advisor
- Risk Management
- Safety
- Education Advisor
Warehouses
- Supply
- Inventory
- Purchaser
- Shopper
- Store Clerk
- Truck Driver
Communications
- Media (Cable / Closed Circuit TV / LAN Communications)
- Computer Techs
- Writers
- Journalist
- Photographers
- Graphic Artists
- Scada System Operators
- Programmers
Library
- Librarian
- Researcher
Education
- Child Care Specialists
- Home School Teachers
- Vocational Teachers
Repair
- Auto Garage
- Small Engine Garage
- Appliance Repair
- Heat / Air Repair
- Electrical
- Electronics
- Grounds Maintenance
- Plumbing
- Painting
- Carpentry
- Pest Control
- Building Maintenance
Welding
Description:
- Small shed required with workbench.
- Awning required for outside work
- $3,500 to equip with portable unit and tools.
- $1,500 in materials to construct.
- Power bill of $15 per month.
- Running water required.
Multi-Use Buildings
- Dining Halls
- Approximately four dining halls feeding 90 persons each would be required.
- They would provide daily four different menus that would be published to offer variety.
- Before and after meals the buildings could be used as meeting areas, lounges, coffee shops, etc.
- A pizza parlor or café could be added later.
- Lounges
- Lounges would be provided for different age groups.
- Offices & Meeting Facilities
- Each cluster would have meeting facilities and small offices.
- The trades area would have offices and meeting facilities.
- Warehouses
- One warehouse would act as general store.
- One warehouse would service restaurants.
- One warehouse would service trades.
- Workshops
- Carpenters, plumbers, communications, welders, health services (nurses, gym, massage, barber), etc.
- Learning Centers
- Classrooms, libraries.
- Hobby Shops
- Each cluster will have a hobby shop.
- Barns
- To house backhoe, tractors, farm equipment.
- Retreat
- A retreat lodge with accompanying guest houses would be available for seminars, a small get together, or a romantic vacation from the kids.
- Chapel
- Outdoor Facilities
- Recreation Fields
- Playgrounds
- Picnic Gazebos
- Hiking Trails.
Legal Entities Needed
Legal Protection
Several corporations would be required in order to always protect the land and buildings from a lawsuit, and to facilitate financing and securing grants.
Legal protection is gained from using multiple corporations. In the practical world, two things must occur in order to get sued for the big payoff. First you must have a “deep pocket” (i.e. assets that can be taken);
AND secondly, you must do something to harm another. Therefore to protect itself, one entity would hold all the assets but do nothing while another entity would have no assets but perform all activity.
This makes attorneys very reluctant to take a case to go for the big bucks.
The suggested corporations are as follows:
Co-Op Village Holding, Inc.
Type: Non-Profit, Community Land Trust
As Defined: The Community Land Trust Handbook By: The Institute for Community Economics ISBN 0-87857-401-8.
Purpose: To own all land, options to purchase adjacent lands, all buildings and infrastructure attached to the land. The land and buildings would then be leased to Leasing, Inc.
Membership: All bona fide residents of the Co-OP Village.
Voting Rights: All members would agree that each member would have one vote and each member would have one additional vote for every $1,000 invested in Co-OP Village Financing, Inc., as of January 1 or June 1, prior to voting, whichever is the closest in time.
Board Members: 5
Board Action: The Board would be primarily concerned with land acquisition, construction financing, mortgages, and stewardship as spelled out by the Community Land Trust Agreement. Day to day operations would be left to the Focus Groups.
Co-Op Village Financing, Inc.
Type: Non-Profit
Purpose: To raise money to finance Co-Op Village Holding, Inc.
Membership: All bona fide residents of the Co-OP Village that invests a minimum of $1,000(?) in this corporation.
Voting Rights: Each member would have one vote.
Board Members: 5
Board Action: The Board would be primarily concerned with borrowing money from investors (Internal & External), paying dividends, and lending mortgage money to Co-Op Village Holding, Inc
Co-Op Village Leasing, Inc.
Co-Op Village Leasing, Inc.
Type: Non-Profit
Purpose: To lease the property from Holding, Inc and sub-lease or give life estates to the residents. This would shield Holding, Inc. from lawsuits making Financing, Inc. more attractive to investors.
Membership: All bona fide residents of the Co-OP Village.
Voting Rights: Each member would have one vote.
Board Members: 5
Board Action: The Board would be primarily concerned granting leases, life estates and possible managing a HUD Section 8 Rent Assistance program.
Co-Op Village Operations, Inc.
Co-Op Village Operations, Inc.
Type: For Profit, Limited Liability Corporation
Purpose: To collect revenue for all operations of the village, excluding rent income.
Membership: All bona fide residents of the Co-OP Village who meet the membership requirements of the corporation.
Voting Rights: Each member would have one vote.
Board Members: 5
Board Action: The Board would be primarily concerned with supporting all Focus Groups.
Co-Op Village Health Benefits, Inc.
Co-Op Village Health Benefits, Inc.
Type: For Profit, Limited Liability Corporation
Purpose: To collect revenue from General Operations, Inc. and provide health benefits to members.
Membership: All bona fide residents of the Co-OP Village who meet the membership requirements of the corporation.
Voting Rights: Each member would have one vote.
Board Members: 5
Board Action: The Board would be primarily concerned with budgeting and administration of the group health program.
Co-Op Village Library, Inc.
Co-Op Village Library, Inc.
Type: Non-Profit
Purpose: To provide a library for the community and receive grants for that purpose.
Membership: All persons who meet the membership requirements.
Voting Rights: Each member would have one vote.
Board Members: 5
Board Action: The Board would be primarily concerned with budgeting and administration of the library.
The Village Layout diagram is of a cooperative Village Layout, containing four Neighborhoods made of three Clusters. Each cluster will house about 33 members freely, with each Neighborhood housing about 100 persons. Therefore, the top diagram will house 400 members.
The Trades Area will be offices and workshops for those that want to work and earn money. The property will also have Recreation areas and Food Raising areas.
Each Neighborhood will be have free Dining Hall for all evening meals for all Neighborhood members. Each Cluster will have a smaller Dining hall for breakfast and Lunches.
The parking area will have Golf Carts and delivery vehicles to transport into the Village.
The Trades Area for one Neighborhood might host an Assisted living and/or Nursing Home for our elderly.
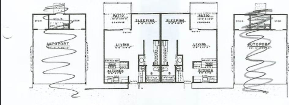
The diagram is of a cooperative Village Layout, containing one Neighborhood made of three Clusters. Each Cluster contains free housing (about 15 homes housing about 33 members in total), local Dining & Meeting Hall, Workshop & Storage, Gazebo with playground, and a Guest Lodge.
How is the Village Organized?
The smallest unit is a Cluster consisting of about 15 homes and about 33 persons. The next unit is a Neighborhood consisting of 3 clusters, about 100 persons, and will contain a large dining hall for communal dinners.
Social dynamics change greatly above 100 persons so there is no unit greater than 100 persons. You will probably not know your other neighbors unless you work with them or share a hobby.
Community Land Trusts
Community Land Trusts
Why Do We Need A Community Land Trust?
A Community Land Trust (CLT) would be a non-profit corporation that would purchase and hold title to the land and lease the land to the Co-Op Village (cooperative) for 99 years with renewals. In the process of leasing, it would place restrictions on the land use, prohibit resale of the land or homes built on it, as well as maintain an entity whose only purpose is to monitor those restrictions. If this was done by the cooperative itself, the co-op bylaws could easily be changed by the residents to remove those restrictions.
The CLT would have a separate board of directors making it more difficult to change the bylaws and lift the land restrictions. Initially, the six members of the CLT board of directors could be made up of residents. However, some government loans or grants, as well as some private grants, might require that the board be made of 1/3 residents, 1/3 low income persons not residents and 1/3 interested community leaders that are non-residents, or a similar restriction of the board. In the event that this should happen the CLT is already in place and need only to change its bylaws to restrict the board member qualifications. This would then give comfort and control to a donating organization that the funds would be used as planned.
What is proposed for the Co-op Village is to have a CLT in place to own the land and to have a Non-Profit Cooperative lease the land from the CLT, own the buildings, and give member residents long-term property leases.
The CLT would focus only on the land restrictions. Therefore, outsiders would not be involved in board decisions affecting day to day village life if they were placed on the Cooperative board because of lack of a CLT. By using the CLT, non-resident board members are restricted only to the initial land restriction issues, nothing else.
The Institute for Community Economics, an advocate group for community land trusts, defines the problem this way:
Cooperative Ownership:
With the cooperative ownership model, the title to the property is placed in a corporation rather than being divided among the individual residents. The residents purchase shares of stock in the corporation and participate in governing the corporation as owners. As a shareholder, the resident receives a long-term “proprietary” lease to her housing unit. In limited-equity cooperatives, the bylaws require that each resident agree to a restriction on the price that she can receive when she sells her share of stock. Perpetual resale restrictions on shares of stock do not involve the problems of legal enforceability that accompany restrictions on the resale of conventional resident-owned or condominium homes. The rules against restraints and perpetuities apply primarily to interests in real property. A resident’s ownership of stock in a cooperative typically is considered to be an interest in personal rather than real property. It is also true that state statutes enabling the creation of co-op corporations in some states explicitly permit co-op equity-limitation provisions.
However, while the long-term enforceability of the restrictions may not be a problem, the long-term existence of the restrictions themselves may be jeopardized. As noted above, the restrictions are implemented through the cooperative’s bylaws, which can be revised by the resident-shareholders, who may have a strong interest in relaxing or removing resale restrictions. Cooperative ownership is therefore a less than perfect means of preserving long-term affordability, unless the continued existence of resale restrictions can be ensured by means not inherent in the model itself.
One way of ensuring the continued existence of a cooperative’s resale restrictions is to arrange for ownership of the land by a community land trust. CLT’s themselves are sometimes the developer/sponsors of limited-equity cooperatives on their land. In these cases, the CLT ground lease requires that specified resale restrictions remain in place perpetually. The CLT monitors the ground lease agreement with the cooperative and can enforce its terms when necessary.
Community Land Trust Ownership:
If the goal of a housing strategy is to develop a pool of permanently affordable housing, it is clear that the three ownership models discussed above are insufficient by themselves. The community land trust model provides a much stronger means of ensuring continued affordability and appropriate occupancy and use. It is much less likely than the conventional resident-ownership and condominium models to be legally unenforceable, and it is much less subject to the removal of restrictions by its residents. These strengths are a result of carefully balanced approaches to both the governance of the organization and the ownership of land and housing.
The CLT’s governance structure recognizes and protects the interests of current occupants of CLT homes, who have status as “lessee-members” of the organization and who are normally represented by one third of the board of directors. But the governance structure also recognizes and protects the interests of other residents of the community, who may hope to obtain affordable CL T homes in the future, or may live next door to CLT properties, or may be otherwise affected by the CLT’s program. This balanced approach is designed to remove the possibility of completely self-interested governance by anyone group.
The CLT’s approach to ownership, using the ground lease device described above, is designed to allocate property rights and value between two owners between the CLT and the lessee. The CLT retains title to the land and leases it to homeowners through a ground lease that requires owner-occupancy, prohibits certain inappropriate uses, and requires that, if the owners wish to sell, the home can be sold only to the CLT or to another “income-qualified” household for a price that is limited by a formula designed to preserve affordability.”
Residency Process
Co-Op Village Resident Rules
- Resident must not be a threat (physical, verbal or emotional) to others.
- No illegal activities, harmful to the community, undertaken while a resident.
- Residents must be able to switch from “what is in my best interest” to a mode of “what is in the best interest of all concerned”.
A six month probation period might be imposed to insure that this is possible, and village life is indeed what the resident chooses.
The application process has not been written and uploaded yet. We will began taking applications after January 1, 2025.
In the meantime this is what may be required:
- Attend series of educational seminars on Coop Village to include:
mission, financing, personalities, village resources, governing process, how to meditate, etc. - Spend time in guest housing, if possible, to experience/participate in village life.
- Complete Family Information Form (see sample).
- Complete financial screening (initial entrance fee, payment for building materials, apply for financing, etc.)
- All intake forms would be taken by the Recruitment and Human Resource departments, then completed further by them. Village needs and residents work potential and desires would then be matched.
- Accounting would create a cash flow projection for that family and assimilate it into the overall village cash flow.
- Persons from both Human Resources and Recruitment would be assigned to new residents for six months. They would introduce them to the village concept and help them during the probation period to achieve their personal goals.
- Membership decisions would then be made by the Focus Group “How will we expand our community”.
Membership Screening Tools
- Financial
- Initial entrance fee?
- Cash available to purchase their share outright?
- Financing required?
- How will they meet their living expenses?
- Work inside, outside or cash?
- Skills
- Work History
- Education
- Interests
- Physical Abilities
- Background
- Convictions
- References
- Needs
- Living space
- Special accommodations & needs.
- Nutritional
- Childcare
- Eldercare
- Transportation
- Educational
- Require written or verbal declaration of interest in coop village concept.
Along with the usual questions the Village would be most interested in the following items:
- Names, ages and relationships of all family members.
- Names, ages and relationships of others needing living accommodations on an intermittent basis.
- Special needs of any family member.
- Current and anticipated educational needs.
- Family pets.
- Criminal and social behavior problems of family members and potential any family visitors.